- Woonoppervlakte
- Circa 191 m²
- Perceeloppervlakte
- Circa 138 m²
- Bouwjaar
- Gebouwd in 1969
- Aantal kamers
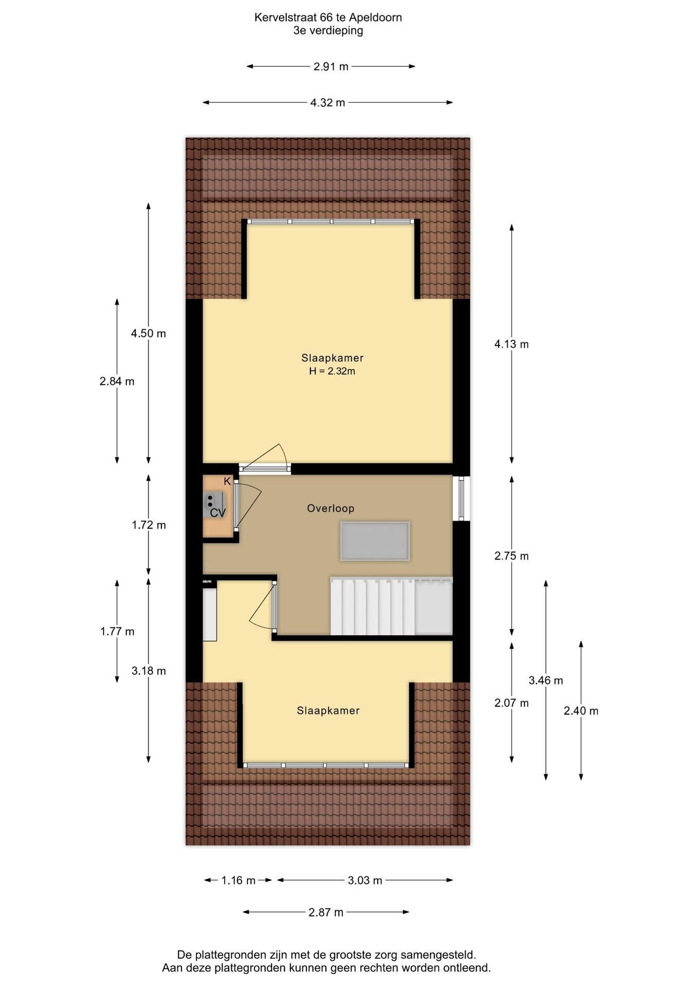
- 8 kamers (6 slaapkamers)
For english see below
Ruime woning met 6 slaapkamers, ideaal voor samengesteld gezin of mantelzorg
Welkom bij Kervelstraat 66 in Apeldoorn! Deze prachtige woning biedt een zee aan ruimte en is perfect geschikt voor een samengesteld gezin of mantelzorg, met in totaal 6 slaapkamers en voorzieningen op de begane grond, waaronder een toilet en douche. De woning is volledig uitgevoerd in kunststof met elektrische raambekleding aan de zonnige zijde, wat niet alleen gemak maar ook energie-efficiëntie biedt.
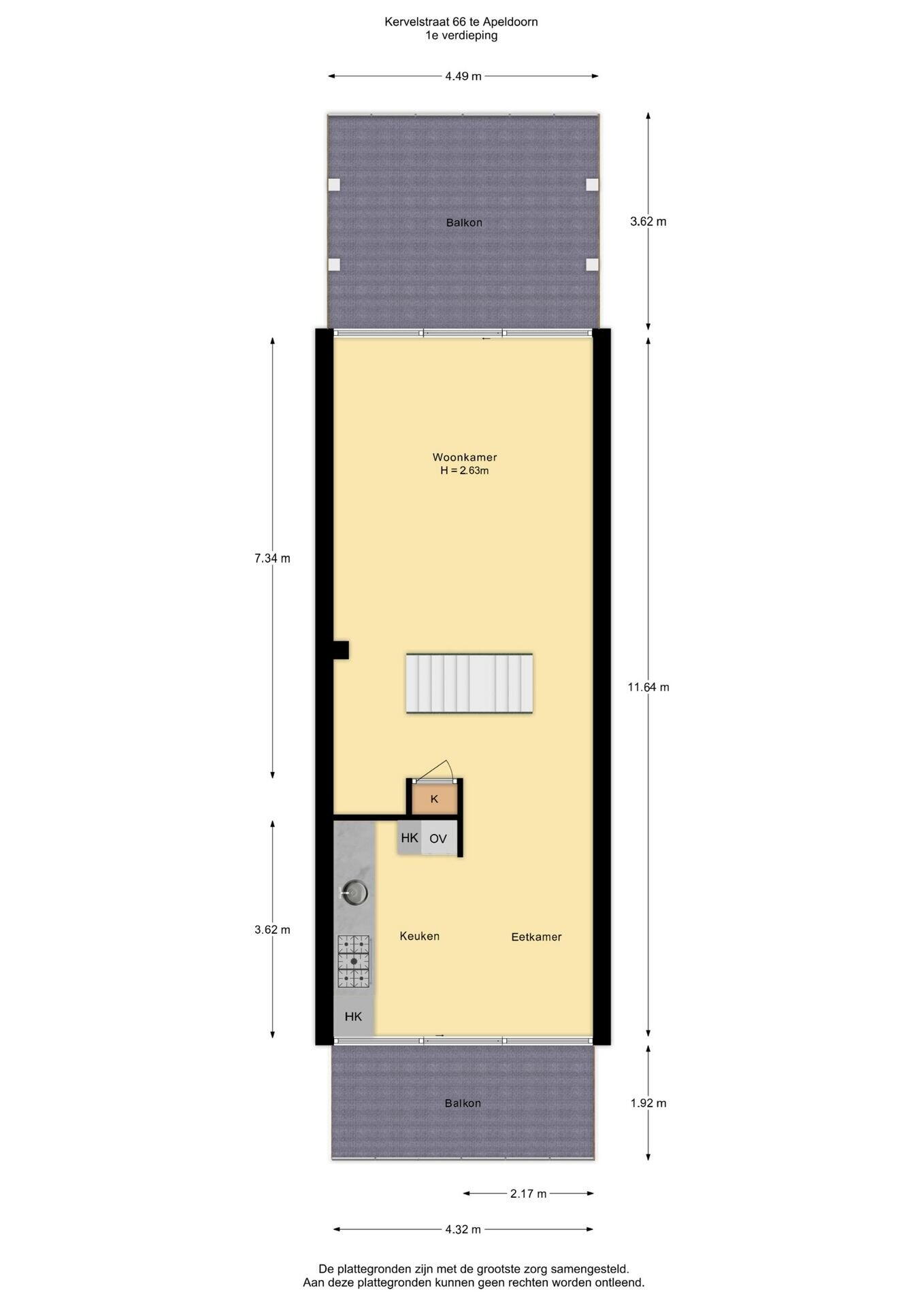
Op de eerste verdieping bevinden zich aan beide zijden ruime balkons, ideaal om 's ochtends te genieten van een kopje koffie in de zon en 's avonds te ontspannen met een drankje na een drukke werkdag. Met een indrukwekkende woonoppervlakte van 191 m2 verdeeld over maar liefst 4 verdiepingen, is er in deze woning voldoende ruimte voor privacy en comfort voor het hele gezin.
Gelegen in een kindvriendelijke buurt met diverse speeltuintjes in de omgeving, biedt Kervelstraat 66 ook het gemak van een eigen parkeerplaats op eigen terrein. Bovendien bevindt zich op loopafstand een zwembad, ideaal voor ontspanning en plezier voor alle leeftijden.
Het winkelcentrum ligt eveneens op loopafstand voor al uw dagelijkse benodigdheden, terwijl het prachtige park Mheen vlakbij ligt voor ontspanning in de natuur. Het energielabel B zorgt voor lage energiekosten, terwijl de woning ook nog eens volledig instapklaar is met een zeer nette keuken, een gezellige woonkamer en een prachtig aangelegde tuin.
Kenmerken:
6 ruime slaapkamers
- Voorzieningen op de begane grond inclusief toilet en douche
- Kunststof uitvoering met elektrische raambekleding aan zonnige zijde
- Mogelijkheid tot eigen kantoor of praktijkruimte aan huis
- Op loopafstand van het zwembad
- Twee ruime balkons op de eerste verdieping
- Woonoppervlakte van 191 m2 verdeeld over 4 verdiepingen
- Kindvriendelijke buurt met diverse speeltuintjes
- Eigen parkeerplaats op eigen terrein
- Energielabel B
Deze veelzijdige woning aan de Kervelstraat 66 biedt niet alleen ruimte en comfort, maar ook een ideale locatie met een zwembad op loopafstand. Plan snel een bezichtiging om zelf de charme en mogelijkheden van deze woning te ervaren!
Spacious home with 6 bedrooms, ideal for blended families or caretaking
Welcome to Kervelstraat 66 in Apeldoorn! This beautiful home offers ample space and is perfectly suited for blended families or caretaking, with a total of 6 bedrooms and facilities on the ground floor, including a toilet and shower. The property is fully executed in plastic with electric window coverings on the sunny side, offering both convenience and energy efficiency.
On the first floor, there are spacious balconies on both sides, ideal for enjoying a morning coffee in the sun and relaxing with a drink in the evening after a busy day. With an impressive living area of 191 m2 spread over 4 floors, this home provides plenty of space for privacy and comfort for the entire family.
Located in a child-friendly neighborhood with several playgrounds nearby, Kervelstraat 66 also offers the convenience of private parking on the premises. Additionally, there is the possibility of creating a private office or practice space at home, ideal for combining work and personal life.
Within walking distance, there is a swimming pool, perfect for relaxation and fun for all ages. The shopping center is also within walking distance for all your daily needs, while the beautiful Mheen Park is nearby for relaxation in nature. The B energy label ensures low energy costs, while the home is fully move-in ready with a very neat kitchen, cozy living room, and beautifully landscaped garden.
Features:
6 spacious bedrooms
Facilities on the ground floor including toilet and shower
Plastic execution with electric window coverings on the sunny side
Possibility of private office or practice space at home
Within walking distance of a swimming pool
Two spacious balconies on the first floor
Living area of 191 m2 spread over 4 floors
Child-friendly neighborhood with several playgrounds
Private parking on the premises
Energy label B
This versatile home at Kervelstraat 66 offers not only space and comfort but also an ideal location with a swimming pool within walking distance. Schedule a viewing now to experience the charm and possibilities of this property yourself! Lees de volledige omschrijving
Overdracht
- Vraagprijs
- € 489.000 k.k.
- Status
- Verkocht
Bouw
- Object type
- Eengezinswoning, tussenwoning
- Soort bouw
- Bestaande bouw
- Bouwjaar
- 1969
- Soort dak
- Zadeldak bedekt met pannen
Oppervlakte en inhoud
- Woonoppervlakte
- 191 m²
- Perceeloppervlakte
- 138 m²
- Inhoud
- 621 m³
- Externe bergruimte
- 3 m²
- Gebouwgeb. buitenruimte
- 24 m²
Indeling
- Aantal kamers
- 8 kamers (6 slaapkamers)
- Aantal badkamers
- 1 badkamer en 1 apart toilet
- Badkamervoorzieningen
- Douche, inloopdouche, toilet, en wastafel
- Aantal woonlagen
- 4 woonlagen
- Voorzieningen
- Buitenzonwering, glasvezelkabel, en mechanische ventilatie
Energie
- Energielabel
- B
- Energielabel registratie
- 28-05-2025
- Isolatie
- Dakisolatie, dubbel glas en hr-glas
- Verwarming
- Cv-ketel
- Warm water
- Cv-ketel
- Cv ketel
- Remeha (gas gestookt uit 2022, eigendom)
Buitenruimte
- Ligging
- Aan rustige weg en in woonwijk
- Balkon / dakterras
- Balkon aanwezig
- Tuin
- Achtertuin en voortuin
- Afmetingen achtertuin
- 48 m² (10,51 meter diep en 4,61 meter breed)
- ligging tuin
- Gelegen op het noordoosten bereikbaar via achterom
Bergruimte
- Schuur / berging
- Vrijstaande houten berging
- Voorzieningen
- Elektra
Parkeergelegenheid
- Soort parkeergelegenheid
- Op eigen terrein
Energieverbruik in Apeldoorn
Energielabel deze woning
Energielabel B
Publicatie energielabel: 28-05-2025
Stroomverbruik per jaar
(Gemiddelde tussenwoning in Apeldoorn)
Gasverbruik per jaar
(Gemiddelde tussenwoning in Apeldoorn)
* Cijfers zijn afkomstig van het CBS en bedoeld als indicatie en kunnen verschillen voor deze woning
Indicatie hypotheeklasten
Eigen inleg:
Spaargeld / overwaarde
Rente:
Laagste 10-jaars rente
Laagste 10-jaars rente
2,83% - Centraal Beheer Groen... - NHG
3,1% - Centraal Beheer Groen L... - 80%
Laagste 20-jaars rente
3,26% - Argenta Groen Hypothee... - NHG
3,47% - Argenta Groen Hypothee... - 80%
Laagste 30-jaars rente
3,43% - Argenta Groen Hypothee... - NHG
3,64% - Argenta Groen Hypothee... - 80%
Hypotheek:
Bruto maandlasten: € 0 p/m
Netto maandlasten: € 0 p/m
Hoe berekenen we dit?
Het rentepercentage is gebaseerd op de laagste 10 jaars vaste rente voor één hypotheekdeel. De vermelde rente (3.1% zonder NHG) is gecontroleerd op 01-12-2025. Deze berekening is gebaseerd op een annuïteitenhypotheek die volledig wordt afgelost, waarbij de maandlasten gedurende de gehele looptijd gelijk blijven. De werkelijke rente en netto maandlasten kunnen variëren, afhankelijk van uw persoonlijke situatie en de hypotheekverstrekker. Raadpleeg een financieel adviseur voor een nauwkeurige berekening en advies. Aan deze berekening kunnen geen rechten worden ontleend; het dient enkel als indicatie.
Documentatie
Kadastrale kaart
Leefomgeving
Plattegronden PDF
BAG uittreksel
Brochure
Vragenlijstb-4232
Lijstvanzaken-4232
Bezoek onze website
Bezichtiging
Bod uitbrengen
Waardebepaling
Zoekopdracht
Alles downloaden
Zonnegrenzen bekijken
Op de kaart
Inwoners in Apeldoorn
Cijfers voor postcodegebied 7322
- Totaal aantal inwoners
- 9635 inwoners
- Mannen
- 49%
- Vrouwen
- 51%
Inwoners in Apeldoorn
Cijfers voor postcodegebied 7322
- tot 15 jaar
- 16%
- 15 tot 25 jaar
- 12%
- 25 tot 35 jaar
- 23%
- 45 tot 65 jaar
- 28%
- 65 en ouder
- 21%
Huishoudens in Apeldoorn
Cijfers voor postcodegebied 7322
- Eenpersoons zonder kinderen
- 33%
- Meerpersoons zonder kinderen
- 31%
- Huishoudens zonder kinderen
- 64%
Huishoudens in Apeldoorn
Cijfers voor postcodegebied 7322
- Huishoudens met één kind
- 8%
- Huishoudens met meerdere kinderen
- 27%
- Huishoudens met kinderen
- 35%
Woningen in Apeldoorn
Cijfers voor postcodegebied 7322
- Woningen voor 1945
- 10%
- Woningen tussen 1945 en 1965
- 1%
- Woningen tussen 1965 en 1975
- 60%
- Woningen tussen 1975 en 1985
- 7%
- Woningen tussen 1985 en 1995
- 14%
Woningen in Apeldoorn
Cijfers voor postcodegebied 7322
- Woningen tussen 1995 en 2005
- 4%
- Woningen tussen 2005 en 2015
- 3%
- Woningen na 2015
- 1%
- Huurwoningen
- 40%
- Koopwoningen
- 60%
Overige in Apeldoorn
Cijfers voor postcodegebied 7322
- Gemiddelde WOZ waarde
- € 227.000,-
- Personen onder de 65 met uitkering
- 9%
Overige in Apeldoorn
Cijfers voor postcodegebied 7322
- Adressen per km²
- 2068
- Stedelijkheid (schaal 1 op 5)
- 80%
Indien u vragen heeft of u wilt een bezichtiging inplannen, dan kunt u gebruik maken van het formulier hiernaast. Er zal daarna op korte termijn contact met u worden opgenomen.
De Eglantier 404
7329 DL, Apeldoorn
055 202 00 10 apeldoorn@wittewoningmakelaars.nl www.wittewoningmakelaars.nlContact opnemen
WitteWoning makelaars Apeldoorn
Uw woning verkopen kan natuurlijk bij iedere willekeurige makelaar, waarom dan toch kiezen voor WitteWoning Makelaars.
WITTEWONING MAKELAARS BIEDT U BIJ ALLE DIENSTVERLENING ALTIJD DE BESTE SERVICE VOOR DE SCHERPSTE PRIJS VAN NEDERLAND
Hierbij regelen wij het gehele traject van A tot Z. Van opname van de woning tot sleutel overdracht. Alles wordt geregeld, en u wordt hierbij zoveel mogelijk ontlast of begeleid.
Wilt u zelf ook uw steentje bijdragen, door bijvoorbeeld zelf de bezichtigingen met aspirant kopers te verzorgen, dan kunnen we een lagere courtage bij verkoop met u overeenkomen*
Vanzelfsprekend komt u woning niet alleen op onze website te staan, maar ook wordt deze volledig geplaatst op Funda, onze eigen website en een aantal andere sites. Verder zijn er nog veel websites die ons aanbod spyderen waardoor uw woning terug te vinden is op een groot aantal websites. Hiermee heeft u dus een bereik van een miljoenen publiek voor uw te koop staande woning.
* Vraag bij uw lokale vestiging naar de mogelijkheden
Nieuwste reviews
-
Melanie Jager
Via Harms en Baks terecht gekomen bij Piet toen wij vorig jaar een huis wilde kopen. Avond van te voren gebeld en Piet kon de volgende dag a...
-
Walter Dias Nzasi
Ik heb onlangs gebruikgemaakt van de diensten van aankoopmakelaar Piet de Haan, en ik ben ontzettend tevreden over het hele traject. Piet wa...
-
Liesbeth van Rixtel
Ontzettend dankbaar ben ik dat ik Piet de Haan als aankoopmakelaar heb gehad. Dankzij zijn kennis en contacten heb ik snel een woning kunnen...